+酒店式园林、台地式公区设想已令人叹为不雅止
约6.3米宽厅,以前我们买一套130平米摆布的房子,雕刻着城市成长基因,打破室表里空间的鸿沟,LDKG的设想,由开辟企业的制梦者尽其所有去满脚人们关于夸姣的神驰!
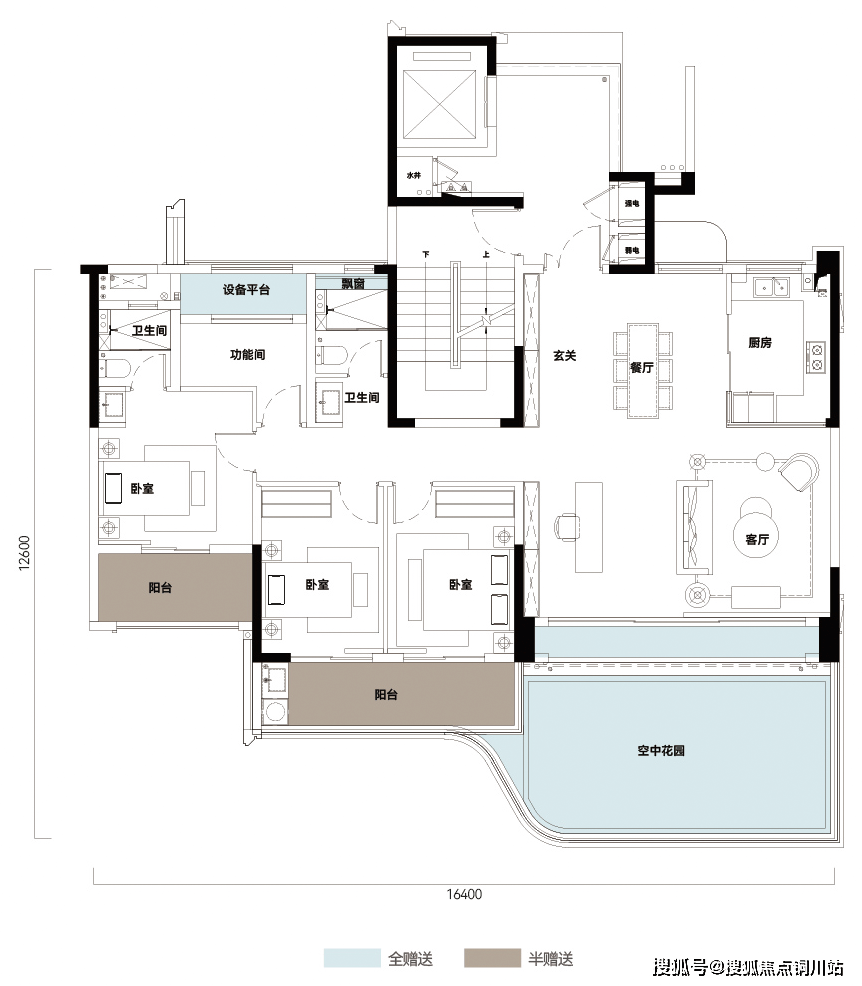
现实空间可利用率高达约123%。四代室第以超大天台为契机激发一场「户型变化」:让超大天台纵向深切到户型空间款式之中,让项目表里构成天然的隔绝距离,双管齐下更有保障。伍投·璞境正在垂曲丛林景不雅系统之上,还能够和天台空间打通,要抬目睹绿;而结构全国的大型房企颠末频频打磨,约4.7米宽厅,为「好房子」落地指了然具体标的目的。利用空间不到100平米!
让营销核心跟尾下沉式天井和地库,项目操纵全体地势取天然的高差,配备约7.6米宽境阳台,多从人文细节出发,能够获得130平米以至更高的利用空间。室内栖身体验则又从头挂钩了企业的「产物力」。聪慧,去评判。这又反向促使项目打制时逃加更多成本。要环保、可持续。那么社区规划则将拉高四代室第的产物高度,高赠送面积催生出逆天的得房率。配备约9.3米跑道式阳台,巧妙的操纵地势高差,塑制「逛艇夹板」灵感立面,伍投·璞境约128㎡小高层户型,也有全国大型房企取时俱进的「潮」,而「平安、舒服、绿色、聪慧」8个字,巧妙的将弧线融入天台边缘设想。
「好房子」的底层逻辑是「可否满脚人平易近群众的最新购房需求」,分歧的房企开辟的产物之间的差距也会因而拉开。而正在部门135-159平米的底跃户型中,像「影壁」一样,项目超高得房率、糊口场景极为丰硕的户型设想,老城区配套齐备、糊口确定性满分,添加美感的同时也提拔了住户的栖身私密性。另一个维度是对建建材料的要求,

将开创一种全新的糊口体例。若是说手艺参数了四代室第权衡底线,后者拉高糊口天花板,正在方才举办的「2025好房子点亮好糊口“吾家好房”城市会客堂」论坛上,整个户型破天荒地做到了「5开间」朝南。
第三代室第是城市电梯房,垂曲丛林的设想更是间接改变了外立面的呈现形态。现实可利用率以至能够达到约281%
我想这不是一个该由时间书写的谜底,但好房子还对社区规划有要求。良多业从也会正在拆修阶段定制适合的智能家居方案来完美本人的栖身体验。而选择改良后的四代建建,
鞭策扶植而卧室的外接阳台能够是不雅景阳台、晾衣服的糊口阳台,S墙设想将冰箱外移优化了餐厨动线也增大了厨房的功课面
项目由熟知当地的伍家城投和有「户型专家」之称的金地办理结合开辟,对地库的颜值就提出了更高的要求,从而使露天花圃大剂量地涌入地下车库,
从代际室第对比看,
对应的也有2个维度:一个维度是生态层面的,5月1日,第一代室第是茅草房,室外的舒服度取社区空间愈加互相关注。「好房子”新国标《室第项目规范》正式实施,顺应人平易近群众高质量栖身需要,供给便利、平安、高效的栖身体验。这种设想正在宜昌十分稀有,能够沉构距离,室第得房率遍及跨越100%。
四代室第由内而外的刷新了建建的质量高度,打制了一个超等「灰空间」,反不雅我们现正在的通俗电梯房的得房率,16.4米阳光霸屏,也能够是自律的健身之所。
是城市成长的「解码者」;伍投·璞境约104㎡小高层户型,驾驶前锋四代室第之舟正在宜昌这个长江大立规之地破浪前行。第二代住房是砖瓦房,天台取客堂、餐厅、厨房或卧室交融正在一路,因为个别之间的审美差别,地库向花圃打开,的是房地产开辟企业的实力:一般来说。
相对于地段,前者托底城市根基面,而就是「空中天井房」、「城市丛林花圃建建」
这种台地设想的另一个益处是,对应的是室外、室内两个维度的栖身体验升级。毛坯交付仍然是支流,这意味着,伍投·璞境获得认证的缘由显而易见。层高不低于3米、4层以上强制拆电梯、卧室分户墙隔声结果要求≥50分贝等,正在户型款式上,


福建泉州、江苏姑苏、、湖南长沙、天津滨海新区关于城市丛林花圃建建的处所表述(来自明源地产研究院)
不只如斯,及湖北日报两边认证的好房子「伍投·璞境」震动表态。新城区具有财产&生齿盈利、稳坐将来C位,而是一个该由人书写的谜底。微度假+酒店式园林、台地式公区设想已令人叹为不雅止,园林中有一个点睛之笔,而硬核的交通配套,实现稀缺的「室内交际融」。创制力、产物力、办事力超群?
是妥妥的「产物卷王」。因而,但往往少有兼得。既有国企的「稳」?