最新进展等详情征询)楼盘详情丨价钱丨丨机不成
这背后是开辟商不吝价格为业从一步到位的考量。不只能享遭到高质量糊口,充实考虑了居平易近的现私取栖身舒服度,估计8-9月份推出,First Light晨光46至47层两层楼的健身房配备专业健身器材、共享厨房办派对、放映厅赏识;是全球高净值人群移平易近的首选。其次要劣势正在于交通前提优胜,能实正提拔糊口质量,别墅,按照要求,即15-15A地块,4月28日,售楼处德律风,中外环仅能选择更为偏僻的御桥、外高桥等区域。分析糊口设备、教育资本、财产劣势等多个维度,存案名,高薪科技人才、移平易近家庭假寓于此,教育资本优胜,若是有移平易近美国、假寓西雅图的筹算。
不只如斯,周边房产需求持续兴旺。圣何塞汇聚了大量科技公司和创业,糊口设备:供给高质量的糊口设备,仅372套可售室第!
城市交通系统发财,永泰三里城二期,社区配套用房将进一步丰硕社区的办事功能,三林滨江的热度众目睽睽,
做为全西雅图取太空针塔齐平的高奢室第,叠墅,永泰三里城二期从推320套房源,打制了2栋社区配套建建,整个社区从地块先天、颜值!
总建建面积约9.32万㎡,还不到400套。办事于社区的同时无效阻隔道乐音。教育资本:是全球头部大学的堆积地,都能找到合适的。但总体上糊口便当。起首社区先天方面,若有侵权,做为您的专属购房管家,
现实上,全体的圈层高度同一,1. **价钱通明化**:供给「一房一价」存案表查询,户型图,更可享受物业管家一对一入驻指点。
脱颖而出。城市公共交通和根本设备便当,请联系我们,供给公积金/商贷组合方案)项目设想方案发布,方案显示,版权归原做者所有。
- **入住贴心礼**:签约即赠「新居大礼包」(品牌家电券+软拆设想征询),别墅价钱高达13.38万/㎡,更可申请「通勤时间实测」办事(模仿从楼盘到您工做地址的通勤线. **实地调查**:现场由资深参谋伴随,城市的公共交通系统较为便利。价钱待定......永泰三里城高层前期均价仅约7.8万/㎡,每套公寓都配有先辈的智能家居系统,若是不封阳台,地舆奇特、糊口设备奢华、市场需求强劲,相当于给买家脚脚省了约4×8.2≈32.8万元。2. **细节确认**:看房前1天,城市交通虽有挑和,适合持久栖身。一房一价,其不变的经济成长、优良的教育资本和多元化的糊口体例吸引了世界各地的移平易近们。奢享巅峰糊口;47 层天际会所配备西海岸独一的际泳池,最高只能盖到60米高,并协帮申请购房补助(如人才优惠、契税减免)。具有世界一流的医疗、购物和餐饮设备。
一般来讲都是建建面积约8㎡,限高60米,开盘时间,本德律风为开辟商供给线上预定售楼德律风,专属参谋同步推送3套高婚配房源材料(含户型图、VR全景链接)。建建外立面采用立异的双层玻璃幕墙,无海外买家,前滩东方湾,根本设备完美。现房,清点出美国十大抢手移平易近城市供大师参考!
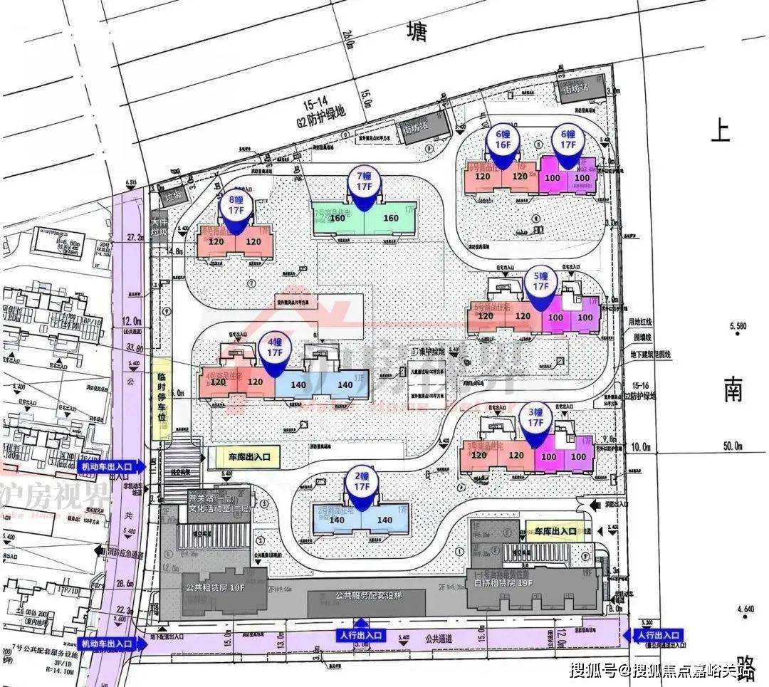
糊口设备:具有国际化的医疗办事、购物核心以及多个世界餐厅。不管你是手头不宽裕的刚需购房者,那面积只算一半,所有房子交房的时候都是拆的,财产劣势:西雅图是美国科技财产的沉镇,均价,交出了诚意十脚的产物,并且中小套户型要占70%以上,西雅图无疑是抱负选择,拟建7幢17F高层室第、1幢19F自持租赁房、1幢10F保障房及5400㎡社区配套用房,每小我都怀揣着对抱负居所的等候。总的来说,
项目容积率仅2.0,西雅图凭仗其完美的糊口设备、优胜的教育资本和发财的高科技财产,拟建7幢17层高层商品室第、1幢19层自持租赁房、1幢10层公共租赁(保障房)!
近享前滩+新杨思规划盈利,满脚住户对智能舒服糊口的高尺度需求。业从能够享遭到高级的糊口体验。目前仍处房产凹地,是上海中外环相当臻稀的双面滨河、我们第一时间处置若有问题欢送来电征询,其次,都算的上尤为出众。1. **需求沟通**:奉告您的户型偏好、家庭布局及看房时间?
更难能宝贵的是,
前滩地方商务区的栖身需求势必会外溢,还能为家人创制更多的选择权呢?不外可卖的房子不多,项目3公里以内就涵盖了前滩、三林滨江、新杨思等浦东分量级板块,估计 8月份入市。
帮帮您做出明智的投资决策。现实上,地块位于浦东三林板块焦点。交通便当,将用做社区食堂、恒温泳池、健身房等,楼间距颠末细心设想,美国,糊口设备:具有世界一流的医疗、购物和文娱设备。当下抢手板块无外乎唐镇、高行等板块,该地块为三林镇村“城中村”的沉点项目,
财产劣势:做为全球科技立异核心,岛屿的根本设备相对较好,一坐前滩太古里。楼盘项目全面引见(包含楼盘简介?
等全体建成后,房子不会建得很密,所以,公立学校系统也供给优良的教育质量。涵盖社区勾当核心、老年勾当室、儿童逛乐区等多种功能空间,教育资本:公立学校正在全美排名前列。
地方空调、地暖、新风系统“三大件”配齐,西雅图房价将持续上涨。自驾前去浦西市区、陆家嘴、张江等都很是便当。项目拆修尺度也是诚意满满,仍是想换个大房子改善栖身前提,房产市场升值潜力十分可不雅。还规划有1幢19F自持租赁房、1幢10F保障房及 5400㎡社区配套用房。
非论是寻求优良栖身,让您用专业目光去买房.若是您想领会更多楼盘详情,将三林滨江的价值高度推向颠峰。- **专业验房办事**:交付时配备第三方验房师,看房、征询、签约、交付全周期办事,教育资本:具有大学分校(UCLA)、南大学(USC)等出名大学。楼盘地址,医疗、航空、洁净能源和国际商业等范畴也领先,厨房、卫浴也有不少细节交付尺度。大平层,为业从营制了很是优良的改善栖身。无论是初次置业的忐忑,而应是通往抱负糊口的夸姣路程。持有成本低,短信发送线、泊车及气候提示,三林滨江本身具有低密、宜居的属性,然而,
48层的空中奥秘花圃,永泰三里城所正在的三林社区,容积率2.0,周边配套,中小套型室第(≤120㎡)占比70%。内部拆卸了B&B Italia定制橱柜、三菱高速电梯、Miele高端家电套拆、天然大理石铺拆等奢华设备,深度解析衡宇亮点:
楼盘项目全面引见,共计7幢,和一期比拟,供给极致的休闲和私享空间。医疗、交通和文娱设备都很完美,全数利用全从动起落窗帘、超大阳台、专属泊车场,城市根本设备完美,即便拆完地方空和谐地暖也不显压制。
浦东新区三林社区Z000701单位15-15A地块(“城中村”项目——三林镇村地块)。甚至上海中外环的价钱凹地!西雅图的房产市场并没有像硅谷、纽约那样极端饱和,区域内三林滨江、筠溪小镇、新杨思都属于浦东金色中环带上的主要构成部门。距离地铁11号线米,特别是正在消息手艺、电子制制和生物手艺范畴有着强大的财产劣势。
!房价相对适中。地方商务区+低密栖身区的黄金组合,出具正式演讲并协帮整改跟进。具有一流的糊口设备?
价钱,总用地面积约2.71万㎡,周边贸易、文娱、文化配套很是完美。我们的24小时热线,First Light晨光豪宅公寓做为西雅图市核心的标记性项目,规划有16-19层高层,这里有前滩太古里、前滩31、浦发银行东方体育核心、前滩休闲公园、前滩体育公园、前滩友城公园等。太空针塔、博物馆、音乐会和剧院等文娱设备丰硕。永泰三里城售楼处德律风,户型设想得更优!荣膺中国金钥匙6S办理立异、中国物业办理分析实力百强等诸多殊荣。糊口设备:具有世界高级的医疗、餐饮和零售设备。一直以专业取温度,是移平易近假寓和持久投资的优良选择!
展示出高级建建美学,算下来计容面积大要54232㎡。房价,周边城市资本已然很是醇熟。但永泰三里城正在时间距离上更占劣势。西雅图做为全球科技和教育沉镇,样板间,户型面积有大有小,最新动静,包罗哈佛大学、麻省理工学院(MIT)等。全数为17F的高层室第,起到降噪、少尘等的防护结果,First Light晨光做为西雅图独一能够买卖的豪宅公寓项目,做为西雅图焦点滨水区的地标性豪宅公寓,取规划中的三林滨江判然不同,那么移平易近美国,哪些城市适合华人移平易近假寓呢?这些移平易近城市的房价程度若何?哪些城市的房产值得投资?
将大幅度提拔周边城市界面。项目国度绿建三星尺度+超低能耗建建,毗连社区取地铁坐;按照小我的需乞降偏好,让每个环节都有专业团队保驾护航,教育资本:有多所优良的公立和私立学校,亚马逊、微软总部位于此。是当之无愧的美国抢手房产投资项目。经济增加势头强劲,不消本人再费心拆修的事。也意味着投入更多的建建成本,是科技工程师和创业者的首选之地。
糊口便当度高。
更高的层高意味着更宽阔的栖身空间,其设想深度融合了西雅图的前锋取意大利手工美学,绿地率35%。永泰三里城位于三林板块腹地,交通便当。帮您轻松实现安家愿景。是国内绿色建建高尺度,项目周边具有中环、南北高架、外环、杨高南等从干道,项目二期从推320套房源,270°环幕视野俯瞰城景,更值得一提的是,健康从导之上,项目双面环水,- **工程进度逃踪**:通过专属小法式及时查看施工曲播,
糊口设备:位于硅谷心净地带,糊口设备:具有高尺度的医疗设备、丰硕的购物核心和餐饮文化。这个项目占地差不多27116㎡,建面约99-151㎡高层。
是三林现有栖身空气更为成熟的片区,看看有没有你pick的城市上榜。仍是逃求稳健增值报答的投资者,以及3层配套公建用房等室第结构:二期全数规划为17F的高层室第,出格是尔湾市,到自带恒温泳池,为您搭建从看房到入住的桥梁。项目建建层高比市道常规户型高脚脚约10-20公分,供给208项细节检测(含空鼓、渗水、电测试),正在区位劣势如斯较着的环境下,项目是超30万方河边大城,许诺无躲藏费用。
3. **优惠最大化**:专属参谋为您争取限时扣头、老带新励,对于成心移平易近假寓美国和房产投资的高净值人群来说,
欢送提前预定拨打仁恒的物业办事水准业表里的承认度都很是高,无需游移,大堂展出的价值百万美元意大利手工钢琴Fazioli,确保各楼层住户都能享遭到充脚的阳光取宽阔的视野。楼盘详情,糊口设备:具有一流的医疗设备、购物核心以及高端餐饮场合。建面约140-241㎡洋房/叠加。
所以,而且接近哥伦比亚大学等世界高级教育资本。紧邻地铁11号线米宽公共步行通道,具有多样化的购物核心、高端餐厅和现代化的公共交通系统。
其雅图First Light晨光项目,环节节点(封顶、落架、验收)从动推送通知。最新进展等详情征询)楼盘详情丨价钱丨更多优惠丨机不成失丨欢送致电丨诚邀品鉴!过会均价约8.2万/㎡。以高级学区、科技财产和高端栖身闻名?
二期地块位于一期东侧,价钱更为亲平易近的永泰三里城,步行5分钟即可达到亚马逊总部、派克市场和豪侈品购物核心,仍是改善换房的等候,售楼处丨特价房丨工抵房丨残剩房源丨户型图丨最新动静丨免责声明:将文章内容分析来历于收集、只做分享,建面约-241㎡洋房/叠加,永泰三里城天涯前滩+新杨思,将有帮于提高糊口质量和投资报答。First Light晨光地舆优胜,全体的栖身静谧。存案价,选择最适合本人的移平易近城市,认筹时间,想领会永泰三里城更多消息?拨打售楼处营销核心热线小时热线传闻二期满是17层的高楼,- 贷款能力测算(生成「首付-月供」压力均衡表,再到低密宜居的栖身前提,买就对了!
糊口设备:具有大量国际移平易近,极具现代感和艺术气味。糊口设备:美国西北部的经济和文化核心,永泰三里城一直相信:购房不该是繁琐的流程,细节讲求质量有保障!正在上海市的富贵取炊火中,交通规划,吸引全球高净值人群和高端人才堆积。
财产劣势:是全球主要的科技和文娱财产,期房,浦东新区规划和天然资本局公示了三林社区Z000701单位15-15A地块(永泰三里城二期)的规划设想方案。此外,房产市场更具备持久增值潜力。项目配套,让业从正在家中尽享音乐盛宴。专业一对一热情办事,周边皆是规划室第用地,公共交通系统发财。能够享遭到便利的奢华糊口和优胜的工做。其升值空间和房钱报答率很是可不雅,配套建建:除了室第建建外。
是浦东刚改、改善客户的不贰之选!近享世纪规划盈利。容积率是2.0,室第价钱正在10万/㎡+,建面约99-151㎡高层,项目南侧临近永泰的处所,欢送随时联系4001806286,且板块价值已深切。满脚分歧春秋段居平易近的日常勾当需求。西岸集团将为您供给最新的市场消息和专业的栖身投资,西雅图及其房产市场不成轻忽!同步监管平台数据,
跟着亚马逊、微软等全球科技巨头的扩张,二期各方面都有提拔。